Ref
Busco
Tipo
En
Zona
Habitaciones
Baños
Características
Precio

Solar con proyecto y licencia de obras en Horta-Guinardó

Ref. 1128 650 m2 252 m2 5
venta: 720.000 
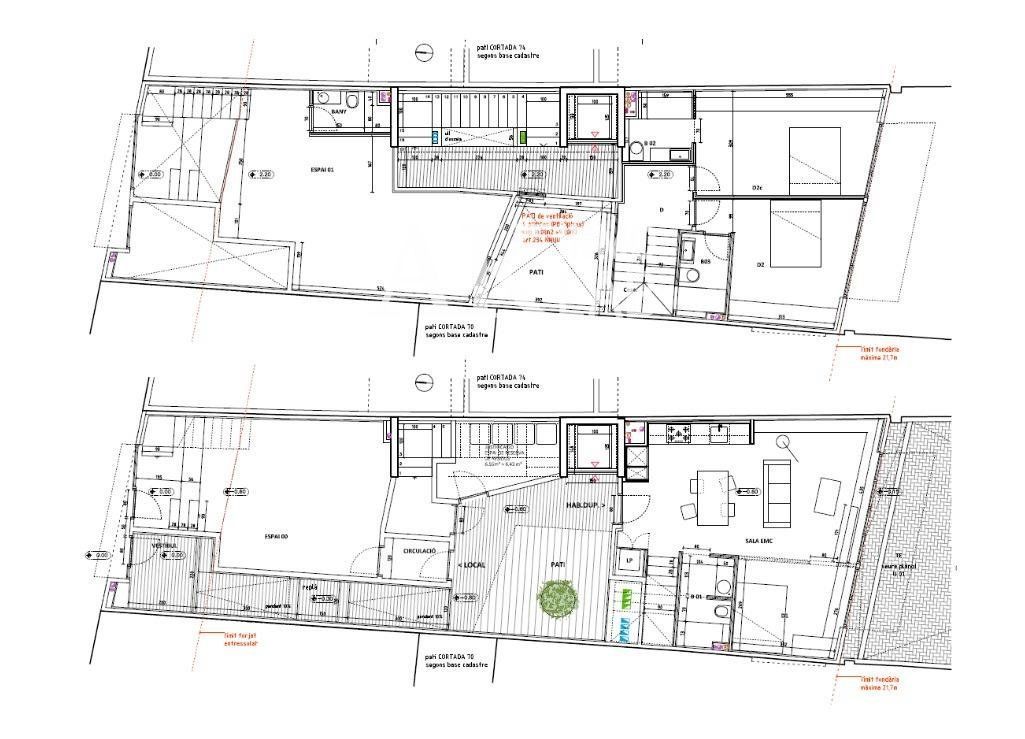
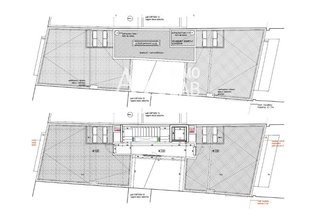
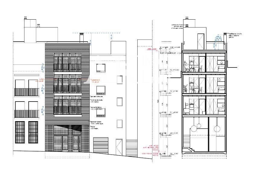
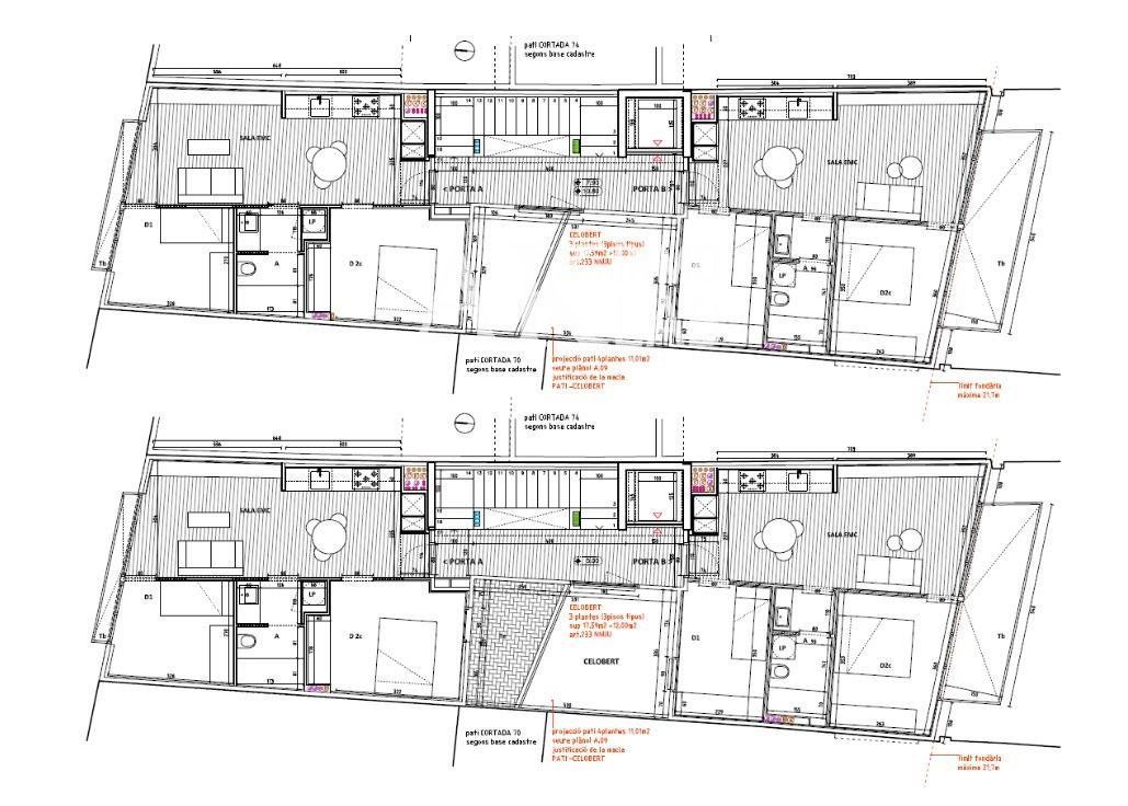
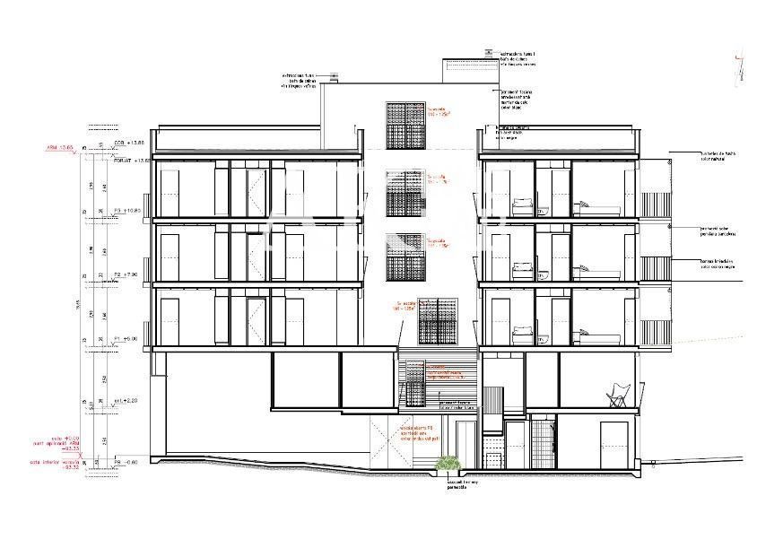
Venta de suelo residencial con licencia de obra y proyecto en Horta-Guinardó (Zona Teixonera - Vall d'Hebron). IDEAL PROMOTOR // CONSTRUCTOR..Oportunidad única para desarrollar un proyecto residencial en una excelente ubicación: distrito de Horta-Guinardó, a tan solo 20 minutos en metro del centro de Barcelona. El terreno está situado en un entorno residencial consolidado, rodeado de zonas verdes y equipamientos deportivos, con fácil acceso por la Ronda de Dalt...Características del proyecto:.• Superficie del suelo: 245 m².• Techo edificable: 650 m² sobre rasante + 220 m² de espacios exteriores.• Altura: Planta baja (PB) + 3 plantas pisos (PP).• Entidades resultantes: 7 viviendas (todas con balcones o terrazas) y 1 local/estudio/loft en planta baja.• Distribución: El proyecto incluye viviendas exteriores, con vistas despejadas a la sierra de Collserola y excelente luz natural. Cada planta contará con 2 apartamentos, a excepción de la planta baja, que tendrá 1 vivienda y el local comercial..Detalles del edificio:.• Las viviendas contarán con terrazas y jardines en la parte posterior, proporcionando espacios exteriores para los apartamentos que dan al interior de la parcela.• Planta baja (PB): Acceso principal a las viviendas, 1 vivienda y 1 local.• Plantas superiores (1ª a 3ª): 2 apartamentos por planta (excepto planta baja), ascensor y escalera..Ubicación destacada:.• A tan solo 5 minutos caminando de la estación de metro L5 El Coll i la Teixonera y a 8 minutos de L3 y L5 Vall d’Hebron.• Frente a las instalaciones deportivas de Vall d'Hebron, la piscina municipal y a 10 minutos andando del hospital.• A solo 15 minutos caminando de la carretera de la Arrabassada y el inicio del parque natural de Collserola.• Excelente conectividad en coche con la Ronda de Dalt, que facilita el acceso al aeropuerto y otras localidades cercanas..Precio de venta: 750.000 € (Licencia de obras y proyecto incluidos)..No dudes en contactar con nosotros para más información o para programar una visita al terreno..Envíanos un WhatsApp al +34 640 311 465 con tu disponibilidad, y te contactaremos a la mayor brevedad posible....AK-BCN forma parte del Grupo Sosa, una agencia inmobiliaria con más de 20 años de experiencia en el sector residencial en Barcelona y provincia. Ofrecemos una amplia gama de oportunidades inmobiliarias: viviendas, chalets y fincas tanto de obra nueva como de segunda mano. Gestionamos operaciones de venta, alquiler y traspaso, siempre con las máximas garantías económicas y jurídicas del mercado...AK-BCN es una empresa dinámica especializada en la gestión integral de activos inmobiliarios. Contamos con más de 100 propiedades en gestión activa y un enfoque personalizado para propietarios, compradores e inquilinos. Ofrecemos soluciones innovadoras adaptadas a cada necesidad, desde la comercialización hasta la mejora de activos...Somos pioneros en proyectos de Co-Living, revalorización de inmuebles y en la búsqueda de modelos de gestión que optimicen el rendimiento de cada propiedad. Nuestro equipo trabaja para minimizar el estrés en la relación cliente-inquilino y asegurar el más alto nivel de satisfacción para todas las partes...Nuestros servicios incluyen:.• Puesta a punto y optimización de la propiedad para venta o alquiler.• Marketing inmobiliario, captación y cierre de operaciones.• Mantenimiento preventivo y correctivo de inmuebles.• Resolución ágil de incidencias y gestión postventa.• Representación legal y mediación entre propietarios e inquilinos/compradores...

Índice de alquiler

Precio Venta 720.000 €
Precio/m² 1.108
Año de construcción 1960
Construidos 650 m2
Útiles 583 m2
Parcela 245 m2
Terraza 252 m2
Altura/Planta 5
Estado Ninguno
Calificación Energética (G) VER
Contacta con tu asesor
Asaf
Solicita información

Si deseas más información sobre esta propiedad, por favor, rellena el formulario: