Ref
Busco
Tipo
En
Zona
Habitaciones
Baños
Características
Precio

Oportunidad de inversión llave en mano en el corazón de Barcelona

Ref. 1089 292 m2
venta: 950.000 
Edificio de Co-living en Raval, Barcelona – Llave en Mano

Edificio totalmente reformado y operativo desde 2015, situado en una de las zonas con mayor demanda de alquiler temporal en Barcelona. Gestionado bajo un modelo de co-living, mantiene ocupación completa durante todo el año, dirigido a estudiantes internacionales y jóvenes profesionales.

A 5 minutos de Las Ramblas, Mercat de la Boqueria, estaciones de metro y paradas de autobús.
Zona ideal para estudiantes y jóvenes profesionales que buscan vivir en el centro de la ciudad.

Perfil de inquilinos:
Estudiantes internacionales (Escola Massana, Elisava, UB, Blanquerna).
Jóvenes profesionales de entre 20 y 35 años.
Modelo de co-living muy valorado con alta demanda de alquiler temporal.

Descripción del edificio
Reformado íntegramente en 2013-2014, con recientes mejoras en planta baja y entresuelo, incluyendo la entrada principal.
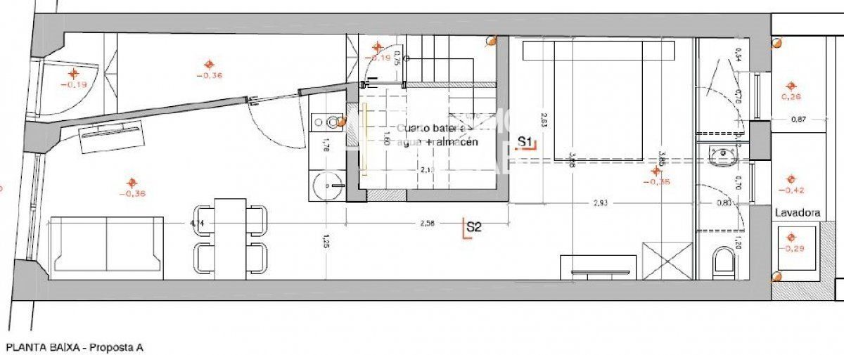
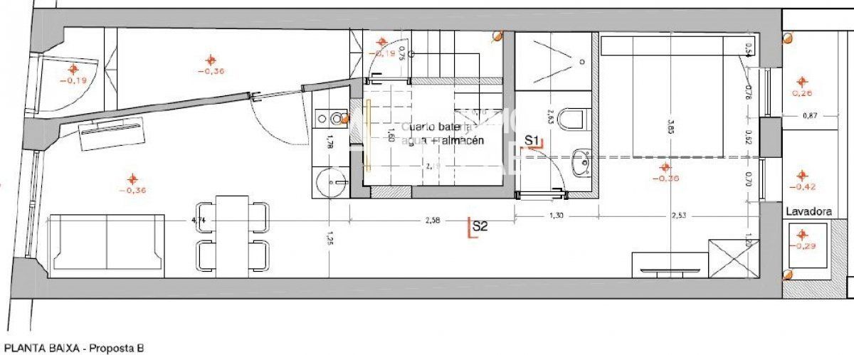
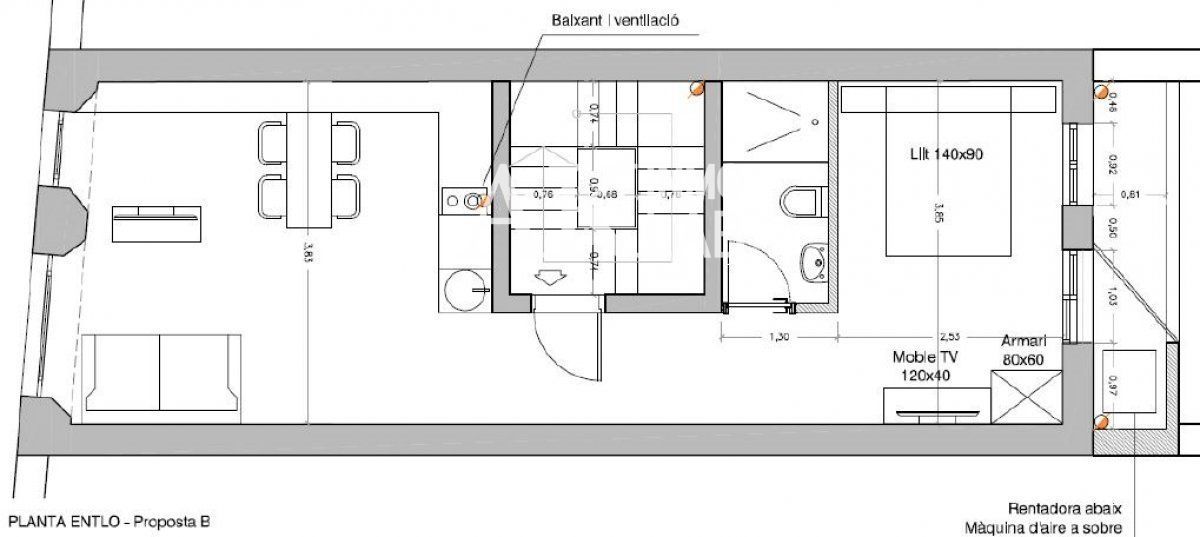
Superficie total: 292 m² distribuidos en planta baja + 5 pisos (aprox. 44 m² por planta).
Total de unidades: 11 (10 estudios + 1 apartamento completo).
Terraza comunitaria: azotea con solárium, mobiliario y lavandería.

Características de las unidades
Estudios: baño privado, armario grande, mesa, nevera y balcón; 2 estudios por planta que comparten cocina (18 m² cada uno).
Apartamento (planta baja): dormitorio independiente, salón, cocina y baño privado.
Wi-Fi de alta velocidad en todo el edificio y limpieza de zonas comunes tres veces por semana.

Aspectos destacados de la inversión
Rentabilidad neta superior al 8%.
Ocupación completa durante todo el año bajo un modelo de co-living probado.
Inversión llave en mano, lista para operar de inmediato.
Posibilidad de venta de la sociedad a precio inferior (consultar condiciones).

Los impuestos de compra y los honorarios de comercialización no están incluidos.

Para más información y para concertar una visita, no dudes en contactarnos.

AK Inmolab es una empresa dinámica de gestión inmobiliaria con más de 20 años de experiencia y un portfolio de más de 100 activos en Barcelona. Especializados en viviendas y proyectos de co-living, ofrecemos soluciones integrales para propietarios e inversores, incluyendo puesta a punto de propiedades, marketing, mantenimiento y gestión completa.

Índice de alquiler

Precio Venta 950.000 €
Precio/m² 3.253
I.B.I. 1.340 €
Año de construcción 1850
Construidos 292 m2
Útiles 292 m2
Estado Buen estado
Calificación Energética (E) VER

Visita Virtual

Vídeos

Inmuebles similares:

 
Edificio Singular en venta en Castelldefels.
     
850.000 €
Contacta con tu asesor
Timea Horvath
Solicita información

Si deseas más información sobre esta propiedad, por favor, rellena el formulario:

AK InmoLab (Ventas) & AK-BCN (Alquiler)
Av. de Mistral 59 (AK INMOLAB Ventas) y Av. de Mistral 2 (AK-BCN Alquiler)
08015 – Barcelona

inmo2@ak-bcn.com