Ref
Busco
Tipo
En
Zona
Habitaciones
Baños
Características
Precio

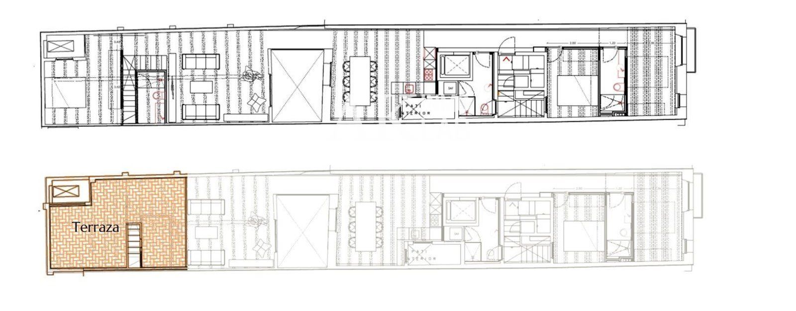
Amplia vivienda reformada con terraza privada en primera planta – El Born, Barcelona

Ref. 1435 154 m2 23,70 m2 3 3 4
venta: 697.950 
AK-BCN comercializa en exclusiva la venta de una promoción de cuatro viviendas de alto nivel, rehabilitadas íntegramente, todas con terrazas exteriores privadas, mucha luz natural y acabados de gran calidad...Esta promoción forma parte de una rehabilitación integral de una finca regia situada en el corazón del barrio Sant Pere - Santa Caterina, a solo unos metros del emblemático Palau de la Música Catalana y muy cerca del Parc de la Ciutadella...El edificio ha sido completamente renovado y dispone de ascensor con acceso directo a las viviendas, cámaras de seguridad, conexión a internet de alta velocidad y una comunidad muy reducida, con tan solo una vivienda por planta, lo que garantiza una experiencia de máxima privacidad y confort...La vivienda disponible destaca por su amplitud y excelente distribución. Dispone de un salón muy luminoso, un amplio comedor con cocina abierta equipada con electrodomésticos de gran calidad, tres dormitorios dobles y tres baños completos. Desde el interior de la vivienda se accede a una terraza privativa en la parte superior, perfecta para disfrutar del aire libre en un entorno tranquilo...La vivienda cuenta con una superficie construida de 154 m², que incluye una terraza de 23 m²...Gracias a su orientación y distribución, la vivienda disfruta de una excelente entrada de luz natural, ventilación cruzada y una agradable sensación de amplitud...Cada detalle de la reforma ha sido cuidadosamente ejecutado con materiales de alta calidad: ventanas con doble acristalamiento para un mejor aislamiento térmico y acústico, sistema de climatización por conductos, electrodomésticos de última generación y mobiliario de diseño...Se vende completamente amueblada y equipada. Actualmente, se encuentra en régimen de alquiler temporal, lo que permite obtener una rentabilidad atractiva desde el primer momento...Una oportunidad única para quienes buscan espacio, calidad, ubicación céntrica y una terraza privada en uno de los barrios con más carácter de Barcelona....AK-BCN es una agencia inmobiliaria especializada en la venta y adquisición de viviendas, chalets y fincas de obra nueva y segunda mano en Barcelona y provincia, con las mejores garantías económicas del mercado...También ofrecemos servicios integrales para propietarios e inquilinos, incluyendo puesta a punto de propiedades, marketing, mantenimiento, resolución de incidencias y mediación...

Índice de alquiler

Precio Venta 697.950 €
Precio/m² 4.532
I.B.I. 839 €
Año de construcción 1800
Construidos 154 m2
Terraza 23,70 m2
Dormitorios 3
Baños 3
Amueblado
Cocina Amueblada
Calefacción Bomba de calor
Altura/Planta 4
Carp. Exterior Aluminio-Madera
Carp. Interior Madera
Orientación Suroeste
Estado Reformado
Tipo de suelo Parquet
Ascensor
Aire acondicionado
Calificación Energética (D) VER
Luz
Agua
Alarma interior

Inmuebles similares:

 
Piso en venta en Barcelona, con 84 m2, 2 habitaciones y 2 baños, Ascensor, Amueblado, Aire acondicionado y Calefacción Gas natural.
 84 m2  2  2
645.000 €
 
Piso en venta en Barcelona, con 106 m2, 3 habitaciones y 2 baños, Ascensor, Amueblado y Aire acondicionado.
 106 m2  3  2
697.000 €
Contacta con tu asesor
Asaf (Venta)
Solicita información

Si deseas más información sobre esta propiedad, por favor, rellena el formulario: