Ref
Busco
Tipo
En
Zona
Habitaciones
Baños
Características
Precio

Mágnifico piso de 3 habitaciones de diseño en Raval

Ref. 1145 100 m2 100 m2 3 2
alquiler: 1.710 €/mes
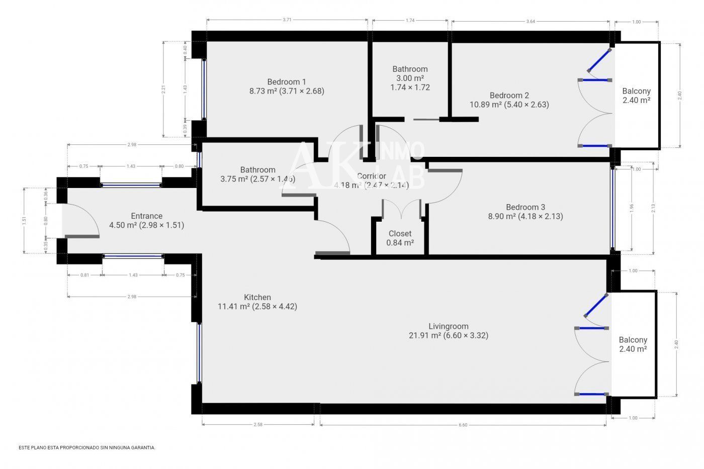
Apartamento de lujo de 97 m² 3 habitaciones ubicado en el segundo piso de un edificio de 1900 con ascensor...Reforma de calidad manteniendo los elementos antiguos, ventanas con doble acristalamiento, aire acondicionado central y materiales de la más alta calidad..La vivienda consta de un amplio salón-comedor de unos 40 m² con un largo y espacioso balcón que da a una manzana de luces y con mucha luz natural durante todo el día..Cocina americana completamente equipada con vitrocerámica, horno, lavavajillas, etc..El apartamento tiene dos baños completos, uno de ellos en suite...Una gran habitación doble con baño en suite y balcón, otras dos habitaciones dobles totalmente equipadas, una de ellas con vistas al gran y luminoso patio interior, y la tercera con vistas a la gran manzana con mucha luz natural durante todo el día..Las dos habitaciones están amuebladas con camas dobles y armarios, y la tercera habitación tendrá una cama doble de 135x190 cm y armario...El edificio cuenta con una enorme terraza comunitaria con vistas increíbles, para uso de los inquilinos. Existe un plan para adaptarla y acondicionarla con una zona de estar y esparcimiento...Destacados:.-Ascensor.-Cocina completamente equipada.-Gran salón, y mucho espacio en general.-Reforma de alta calidad.-Totalmente amueblado y equipado con materiales de alta gama.- Edificio muy bonito, completamente renovado.- Terraza comunitaria de uso exclusivo para el inquilino.- Aire acondicionado central Frío / Calor..En resumen, es una vivienda de lujo única con calidades superiores, que cuenta con espacios muy amplios, en una ubicación perfecta, en el límite de Sant Antoni y Raval, en una zona muy céntrica pero a la vez que transmite una sensación de tranquilidad y paz, ideal para familias, empresarios y/o para compartir, personas que puedan y quieran vivir un lujo auténtico en la ubicación más vibrante de la ciudad...Se encuentra en el barrio de El Raval, en el corazón de la ciudad, a 1 minuto del Mercado de Sant Antoni, a 10 minutos de Plaza Cataluña y el puerto de Barcelona. La estación de tren de Cataluña es el punto central del lugar y una de las mejores y más grandes estaciones de Barcelona, con trenes directos al aeropuerto y otros destinos fuera de la ciudad. Cerca se encuentra la parada de metro de Sant Antoni (L2, línea lila), hay varios restaurantes agradables en la zona, así como bares y muchas tiendas. Es una excelente opción para familias o estudiantes que deseen compartir y disfrutar de los lugares más turísticos y emblemáticos de la ciudad...CONDICIONES DE ALQUILER:..-Alquiler mensual: 1710€/mes..-Gastos de suministros: 300€/mes..-Internet: gratuito..- Honorarios de agencia: un único pago equivalente a un mes de alquiler + 21% IVA..- Gastos de limpieza: un único pago de 240€ (IVA incluido)..- Preparación del contrato: un único pago de 200€ (IVA incluido)...FIANZA.ALQUILERES DE 1-5 MESES: 1.5 MESES SOBRE EL VALOR DE LA RENTA MENSUAL. .ALQUILERES DE 6 MESES A MÁS: 2 MESES SOBRE EL VALOR DE LA RENTA MENSUAL. ..Sobre AK-BCN.AK-BCN es una dinámica empresa de gestión inmobiliaria con más de 20 años de experiencia y más de 100 propiedades bajo gestión en Barcelona. Nos especializamos en ofrecer soluciones avanzadas tanto para propietarios como para inquilinos. Pioneros en proyectos de Co-Living, mejoras inmobiliarias y búsqueda de soluciones personalizadas según las necesidades de nuestros clientes, trabajamos para garantizar que todas las relaciones cliente-inquilino se desarrollen con el más alto estándar de calidad y servicio.

Índice de alquiler

Precio Alquiler 1.710 €/mes
Año de construcción 1900
Construidos 100 m2
Útiles 97 m2
Terraza 100 m2
Dormitorios 3
Baños 2
Amueblado
Cocina Amueblada
Calefacción Aerotermia
Carp. Exterior Aluminio
Orientación Sur
Estado Reformado
Tipo de suelo Parquet
Ascensor
Aire acondicionado
Calificación Energética (G) VER
Luz
Agua

Inmuebles similares:

 
Piso en alquiler en Barcelona, con 81 m2, 4 habitaciones y 2 baños, Ascensor, Amueblado, Aire acondicionado y Calefacción Bomba de calor.
 81 m2  4  2
1.850 €/mes
 
Piso en alquiler en Barcelona, con 71 m2, 4 habitaciones y 2 baños, Ascensor, Amueblado, Aire acondicionado y Calefacción Electrica.
 71 m2  4  2
1.615 €/mes
Contacta con tu asesor
Mónica
Solicita información

Si deseas más información sobre esta propiedad, por favor, rellena el formulario: